【アパート】サンフローラⅡSASAKI(メゾネット)
【アパート】サンフローラⅡSASAKI(メゾネット)/岩手県交通本通り十文字バス停徒歩1分 更新日:2026/3/27次更新:2026/4/10 |
||||
| 交通 所在地 |
賃料 管理費等 |
敷金 礼金 |
間取り 面積 |
物件種別 建築年数 |
|---|---|---|---|---|
岩手県交通本通り十文字バス停徒歩1分 北上市本通り三丁目 |
5.5万円 -円 |
5.5万円 -万円 |
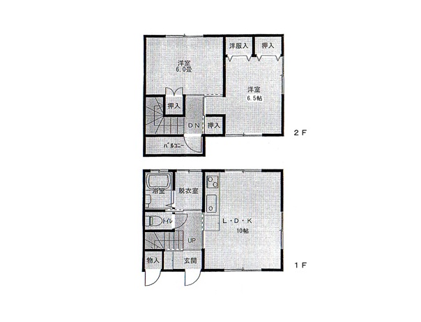
2DK 57.96㎡ |
アパート 2001年3月 |
- 駐車場付
- エアコン
- バス・トイレ別
- フローリング
- ベランダ
- 温水洗浄便座
物件情報詳細
| 交通機関 | 岩手県交通本通り十文字バス停徒歩1分 | ||
|---|---|---|---|
| 間取詳細 | LDK10帖、洋室6.5帖、洋室6帖 | ||
| 建物構造 | 木造 | 階建/階 | 2階建/階 |
| 駐車場 | 2台無料 | 駐車場料金 | -円(税込) |
| 2台目駐車場 | 無料(縦列) | 仲介料 | 1.1ヶ月 |
| 主要採光面 | 取引態様 | 仲介 | |
| 保険 | 加入要 | 現況 | 空室 |
| 備考 | ※ペット(小型犬のみ可)を飼う場合、敷金プラス1ヶ月
賃貸保証会社加入要(契約時…賃料総額の80%+1,500円/月) 契約更新事務手数料…11,550円(税込) 【一部の法人について】 賃貸保証不要(敷金2ヶ月分)可、くらしあんしんサポート24…16,500円/2年 |
||
所在地のMAP
所在地までの交通機関
- ■所在地
- 北上市本通り三丁目
- ■交通機関1
- 岩手県交通本通り十文字バス停徒歩1分
- ■交通機関2
- ■交通機関3



